Property Search

Close

Lundie View, Aberchalder, Invergarry, Inverness-shire

£499,000 Guide Price

0
0
0
23 January 2026
Property Introduction

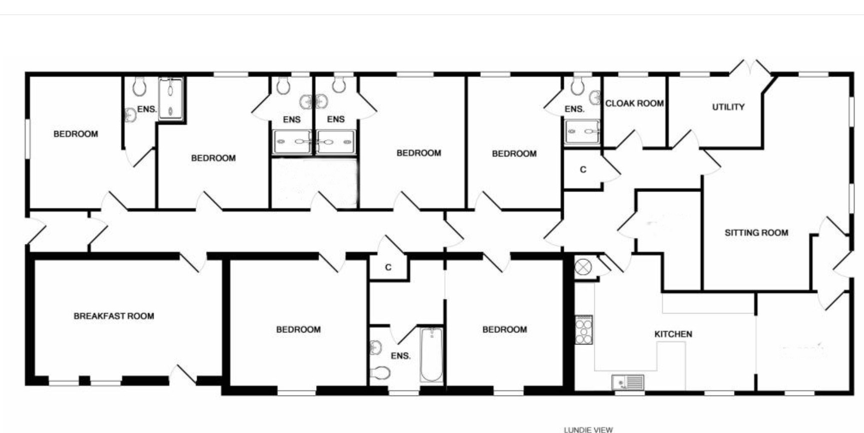
Price Reduction £499,000 Fully functional business with immediate income potential, set in approx 0.6 acres surrounded by beautiful croft and woodland.  The owners benefit from independent accommodation.  There are Six bedrooms, all en-suite (Four letting rooms). Many recent upgrades include a new roof and new en-suites. The property is beautifully presented and in immaculate condition.                    Energy Performance Rating E-47, Fire Safety Compliant, Tenure is Freehold and the property currently qualifies for small business discount with 0 rates for letting rooms. Detached garage / store area / ample parking / decking and  lawned garden. SERVICES: The property benefits from private water and mains electric. A private septic tank is situated in nearby grounds and is for the use of Lundie View only. TITLE DEED The property has a title deed number of INV8619 ACCOUNTS: Full accounting information will be made available to seriously interested parties subsequent to a successful viewing. PRICE: A guide price of £525,000 is sought for the heritable property and its land, complete with goodwill, business content and any onward bookings. RATES: Currently 0 charge for B&B - small business discounted. Owners Accommodation is band B    

Key Features
  • Ref: 160
  • Type: Hospitality
  • Availability: For Sale
Property Details

DESCRIPTION
Lundie View is a superb bed & breakfast business that perfectly meets the needs of the growing local tourism market. Tourism is one of the biggest contributors to our local economy. Operating a successful bed & breakfast with the added bonus of independent owners accommodation can provide a highly desirable and profitable income. This is an outstanding business opportunity with the current owners Alan & Sharon establishing an excellent reputation with repeat visitors, great reviews and a high/full occupancy level during the holiday season.

This predominantly stone built former crofting cottage sits in approximately 0.6 acres was originally built around the 1850s and was extended around the 1970s. More recent enhancements to the property include a new roof, replacement En-Suites for the letting rooms, new electrics and double glazing and an all round freshen up of the décor.

The owners accommodation benefits from a large open-plan kitchen-diner-snug that has a sleek and modern fitted kitchen complete with integrated appliances and a breakfast bar. For the more formal occasions there is a private lounge-diner to the rear that can be accessed from the snug and hallway. The Two en-suite bedrooms are spacious with the master bedroom also boasting a walk in dressing area.

The letting accommodation is easily accessed yet can be separated completely from the owners accommodation. Each of the four letting rooms are spacious and beautifully presented with added comforts that include TV points and USB ports.

Although this is a modern bed & breakfast it still retains some of the original character and charm of the former crofting cottage. It boasts spacious living accommodation all in immaculate, walk in condition and with neutral décor throughout and provides a lovely, clean and contemporary home from home experience.

DIRECTIONS
From Fort William head North on the A82, passing Letterfinlay and crossing over Laggan Swing Bridge. Continue on the A82 and Lundie View is just past the Jaggy Thistle Coffee shop on the left. Parking for visitors is to the back of the property.

LOCATION
Located in the peaceful hamlet of Aberchalder, near the village of Invergarry, this property enjoys a truly enviable position at the heart of the Scottish Highlands. Surrounded by dramatic natural beauty, Aberchalder offers a rare combination of rural tranquillity and convenient access to key routes and outdoor attractions.
Set against a backdrop of rolling hills, ancient forests, and open moorland, Just a short drive away, Loch Oich, Loch Ness, and the Great Glen Way offer world-class walking, cycling, and water-based activities. Meanwhile, the Caledonian Canal runs through nearby Fort Augustus — a popular stop with quaint shops, pubs, and cafés.
Despite its remote feel, the location is well connected. Fort William is around 40 minutes away, and Inverness, with its airport and city amenities, is just over an hour's drive.

Request a viewing
Request a viewing Find your home

Selling your home?

Our landmark office is based in Fort Williams High Street with an opportunity for you to visit us to discuss your requirements. We will provide an all inclusive Estate Agency and Conveyance Package.

No upfront charges and we will guide you through the selling process from start to finish.

Get your home appraised

Click on the link below to view our portfolio of properties, all home reports are available online.

Full Property Search